LOADING

Lot 1 - 11179 Guelph Line Milton (Brookville/haltonville), Ontario L0P 1B0

$989,000

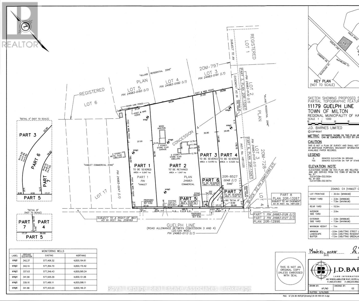
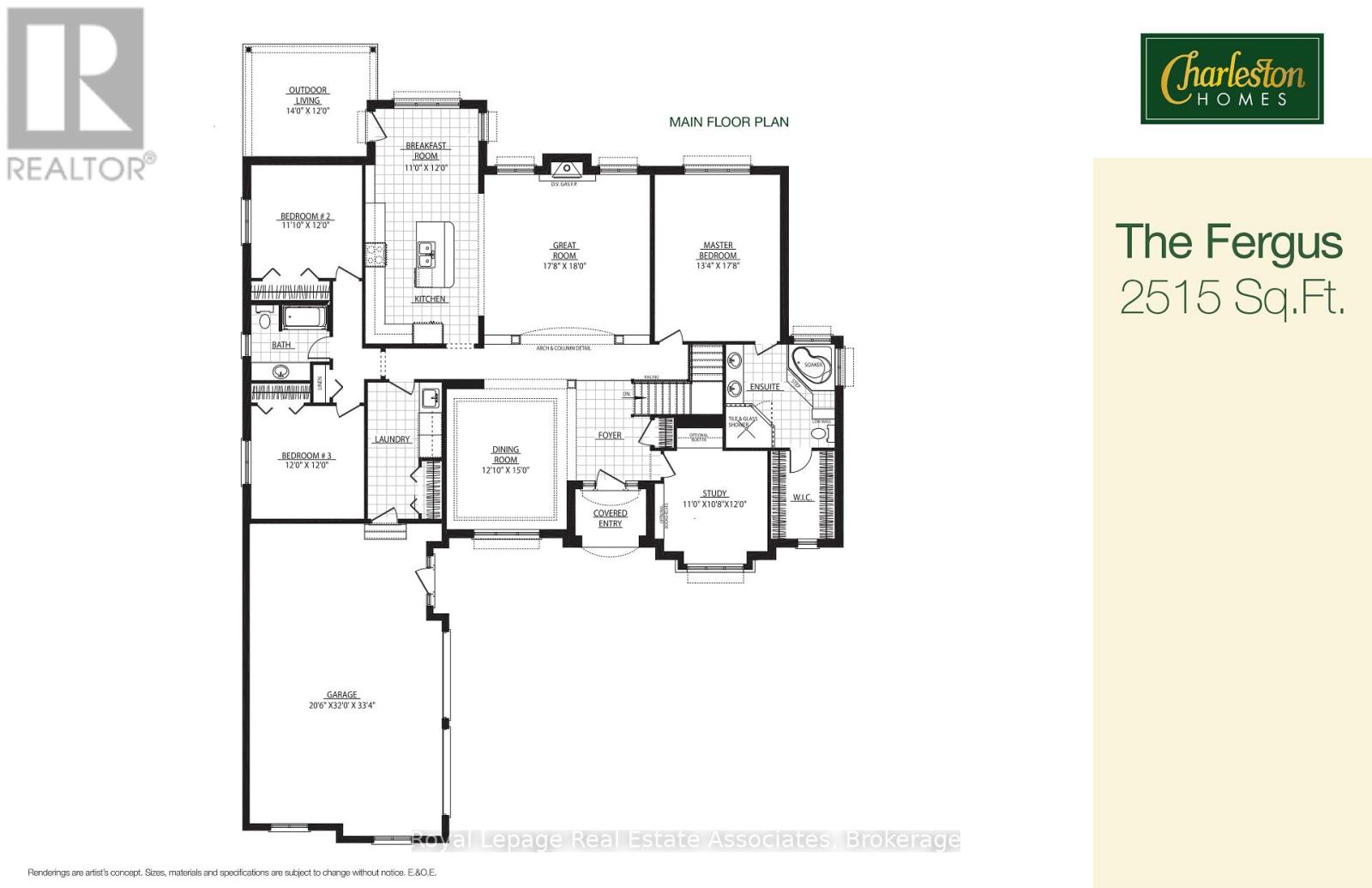
A rare find in the Hamlet of Brookville (Town of Milton)! Finding a blank slate in an established hamlet is like finding a vintage vinyl in mint condition - rare, exciting, and full of potential. This premium building lot offers the charm of country living without sacrificing the "walkable" lifestyle usually reserved for the city. Brookville Park, a less than 5 minute walk north, can be your extended back yard offering playgrounds, open green space, walking trails and baseball diamonds. The park is next to Brookville Public School (JK-8) also just a few minutes walk up the road. Sidewalks make this a quick, safe walk! Prime Hamlet location. Featuring a natural, front-sloping grade this lot offers a raised building site and a beautiful view down to the street. The building envelope is set well back from Guelph Line. Natural gas, electric service and fiber high speed internet are at the street. Survey is finalized. Taxes not yet assessed on this newly created lot. Street address not finalized. (might be 11189) Legal description to be finalized and verified. Property is not subject to Halton Conservation authority. Development fees & Security deposit(s) to Town of Milton to be paid by the buyer. If HST is applicable it will be in addition and paid by the Buyer. Zoning C4. Lot is available for residential development only. Seller has partnered with Charleston Homes for Architect & Builder. Contact Builder to design your custom home! 2500 sq ft - 5000 sq ft permitted. See Survey attached to listing. (id:51194)

Property Details

MLS® Number W13029424
Property Type Vacant Land
Community Name Brookville/Haltonville
Amenities Near By Park, Schools
Community Features Community Centre, School Bus
Easement Other, Sub Division Covenants
Features Wooded Area, Irregular Lot Size, Sloping

Building

Utility Water Drilled Well

Land

Acreage No
Land Amenities Park, Schools
Sewer Septic System
Size Depth 144.02 M
Size Frontage 37.1 M
Size Irregular 37.1 X 144.02 M ; South 151.76m Rear 37.34m
Size Total Text 37.1 X 144.02 M ; South 151.76m Rear 37.34m|1/2 - 1.99 Acres
Zoning Description C4 Hamlet Commercial. Residential Use Only.

Utilities

Cable Available
Electricity Available
Wireless Available
Electricity Available Nearby
Natural Gas Available Available
Telephone Nearby

https://www.realtor.ca/real-estate/29639679/lot-1-11179-guelph-line-milton-brookvillehaltonville-brookvillehaltonville

Interested?

Contact us for more information


Generating Captcha

Fred Klassen
Salesperson

(416) 721-5214
(416) 721-5214
www.kwrea.com/

Royal LePage Real Estate Associates
7145 West Credit Ave B1 #100
Mississauga, Ontario L5N 6J7

(905) 812-8123
(905) 812-8155

Your Favourites

 

No Favourites Found