Maintenance, Common Area Maintenance, Parking, Insurance, Water
$420.67 MonthlyYou'll love living in Acton-offering beautiful parks, scenic trails, Fairy Lake and the small-town charm. This 3-bedroom townhome is ideal for nature lovers, young families, first time home buyers or simply the Acton Lovers. Enjoy your private backyard its perfect for morning coffees, entertaining with peaceful surroundings and chirping birds. Step inside to a cozy Kitchen, a spacious living and dining area that's filled with natural light. the lower level features a tucked away living space and a 4-piece ensuite ideal for visitors or extended family. Additional features include 2 rough-ins for gas fireplaces, Carpet free, Heating and Air Conditioning. Ideally located near Milton, Georgetown, and Guelph, with convenient access to Brampton, Mississauga, and Oakville. Approximately 10 minutes to Highway 401, with shopping, restaurants, and everyday amenities close by. This Home has been loved for many years and ready for the next chapter * Water is included in Maintenance fees* OPEN HOUSE APRIL 12TH 1-4 (id:51194)
| MLS® Number | W12927846 |
| Property Type | Single Family |
| Community Name | 1045 - AC Acton |
| Community Features | Pets Allowed With Restrictions |
| Equipment Type | Water Heater |
| Features | Carpet Free |
| Parking Space Total | 1 |
| Rental Equipment Type | Water Heater |
| Bathroom Total | 2 |
| Bedrooms Above Ground | 3 |
| Bedrooms Below Ground | 1 |
| Bedrooms Total | 4 |
| Appliances | Dishwasher, Dryer, Stove, Washer, Window Coverings, Refrigerator |
| Basement Development | Finished |
| Basement Type | N/a (finished) |
| Cooling Type | Central Air Conditioning |
| Exterior Finish | Brick, Vinyl Siding |
| Heating Fuel | Natural Gas |
| Heating Type | Forced Air |
| Stories Total | 2 |
| Size Interior | 1000 - 1199 Sqft |
| Type | Row / Townhouse |
| No Garage |
| Acreage | No |
| Zoning Description | Mdr2 |
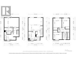
| Level | Type | Length | Width | Dimensions |
|---|---|---|---|---|
| Second Level | Primary Bedroom | 2.9 m | 3.25 m | 2.9 m x 3.25 m |
| Second Level | Bedroom 2 | 3.15 m | 2.41 m | 3.15 m x 2.41 m |
| Second Level | Bedroom 3 | 2.54 m | 3.25 m | 2.54 m x 3.25 m |
| Basement | Great Room | 5.54 m | 3.76 m | 5.54 m x 3.76 m |
| Basement | Utility Room | 4.39 m | 2.11 m | 4.39 m x 2.11 m |
| Main Level | Foyer | 3.35 m | 1.28 m | 3.35 m x 1.28 m |
| Main Level | Kitchen | 2.97 m | 3.25 m | 2.97 m x 3.25 m |
| Main Level | Dining Room | 1.79 m | 1.82 m | 1.79 m x 1.82 m |
| Main Level | Living Room | 5.54 m | 3.05 m | 5.54 m x 3.05 m |
https://www.realtor.ca/real-estate/29524361/73-73-kingham-road-halton-hills-ac-acton-1045-ac-acton
Contact us for more information
Liliana Ursini-Zava
Salesperson
(416) 739-7200
(416) 739-9367
www.suttongroupadmiral.com/