LOADING

5327 Eighth Line Milton (Tr Rural Trafalgar), Ontario L0P 1E0

3 Bedroom 1 Bathroom 1500 - 2000 sqft
Wall Unit Baseboard Heaters Acreage

$9,750,000

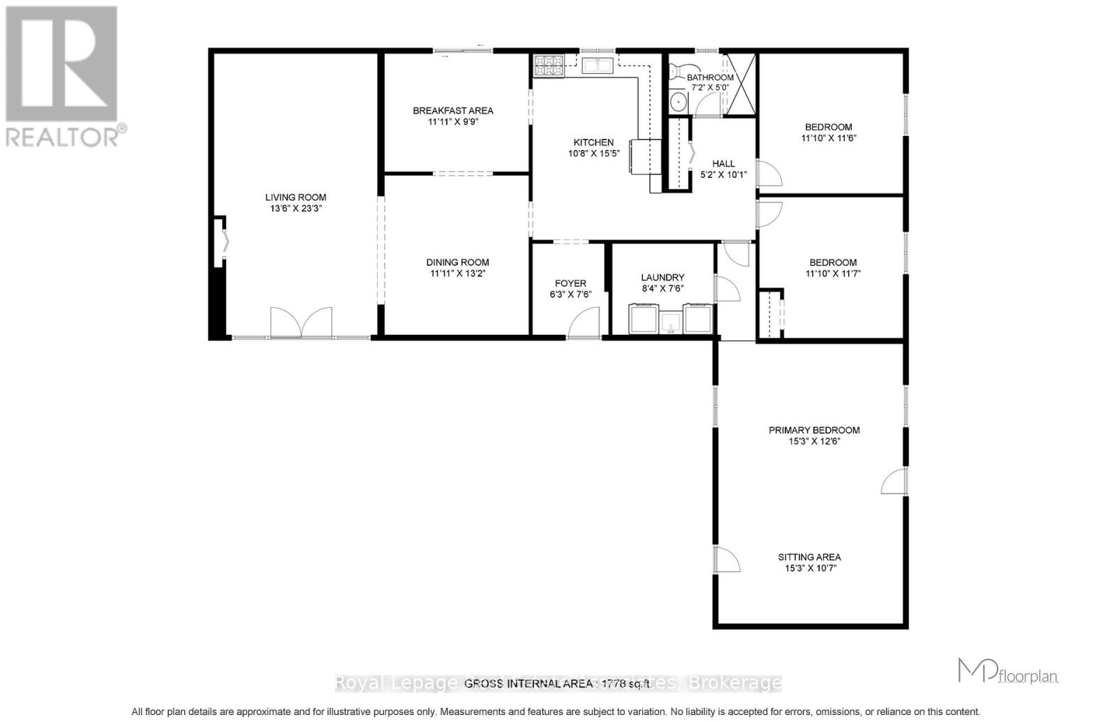
Prime 15 Acre Parcel Ideally Located Between Milton And Mississauga Offering Exceptional Long-Term Potential. Currently Zoned A1, This Property Falls Within The Town Of Milton's Urban Area And Is Identified As Future Employment Area In The Town's Planning Documents (Schedule 2: Growth Phases And Planning Policy Areas). A Rare Opportunity For Investors, End Users, Or Land Bank Buyers Looking To Secure A Strategic Parcel In A Rapidly Expanding Corridor.The Property Features A Well-Maintained 1 Storey Bungalow Built On A Slab Foundation, Offering Over 1,900 Sq Ft Of Living Space With 3 Bedrooms And A Functional Layout. A Greenhouse Is Also Located On The Property, Providing Added Utility For Agricultural Use Or Hobby Farming.The Land Is Generally Flat And Open, Providing Flexible Outdoor Space For Uses Permitted Under Current Zoning While Offering Long-Term Potential.Conveniently Located With Easy Access To Major Highways, Surrounding Employment Lands, And Ongoing Development In The Area. (id:51194)

Property Details

MLS® Number W12977800
Property Type Single Family
Community Name 1044 - TR Rural Trafalgar
Features Country Residential
Parking Space Total 80

Building

Bathroom Total 1
Bedrooms Above Ground 3
Bedrooms Total 3
Appliances Window Coverings
Basement Type None
Cooling Type Wall Unit
Exterior Finish Wood
Foundation Type Slab, Concrete
Heating Fuel Electric
Heating Type Baseboard Heaters
Size Interior 1500 - 2000 Sqft
Type House

Parking

No Garage

Land

Acreage Yes
Sewer Septic System
Size Depth 2217 Ft ,10 In
Size Frontage 297 Ft ,3 In
Size Irregular 297.3 X 2217.9 Ft
Size Total Text 297.3 X 2217.9 Ft|10 - 24.99 Acres
Zoning Description A1

Utilities

Electricity Installed

https://www.realtor.ca/real-estate/29581001/5327-eighth-line-milton-tr-rural-trafalgar-1044-tr-rural-trafalgar

Interested?

Contact us for more information


Generating Captcha

Matthew Gabraiel
Salesperson

(416) 400-9579

Royal LePage Real Estate Associates
1939 Ironoak Way #101
Oakville, Ontario L6H 3V8

(905) 949-8866
(905) 949-6262

Your Favourites

 

No Favourites Found