3 Bedroom
4 Bathroom
2000 - 2500 sqft
Bungalow
Fireplace
Central Air Conditioning
Forced Air
Acreage
Landscaped
$3,649,000
After five generations, this 98.89-acre farm is ready for its next family. Enjoy peaceful country living on a paved road with school bus service, just minutes to town and GO Transit. A rare opportunity to blend lifestyle, income, and farming. The 2001 custom-built brick and stone bungalow set well back and private from the road, provides 4,600 sq ft of living space with a walk-out lower level, ideally suited for a family, multi-generational use, a home-based business or renting. Main floor features a bright eat-in kitchen with centre island and walk-out to deck, formal dining room with pocket doors, open-concept great room, and spacious primary bedroom with ensuite and walk-in closet. Plus a convenient access to the attached 2 car garage and main floor laundry. The lower level includes a 2nd kitchen, 3-pc bath, 2nd laundry, private garage entry and an open concept living area with walk-out to a covered patio area which is perfect for in-law suite or income potential. Many updates include furnace and A/C (2024) and metal roof (2014). Plus 40 acres in workable land for cash crops, 25+ acres in grass for hay, plus a mature mixed forest with maple trees for syrup and private trails for walking, riding and ATV use. Extensive outbuildings include 48' x 288' former poultry broiler barn with heat and concrete flooring, 3,900+ sq ft majestic bank barn with stables for small animals and clean loft, and 40' x 80' drive shed with a concrete floor heated workshop and storage, silos and feed bins for farming, storage and income uses. Two entrances off the paved road give you flexibility for farm equipment access to the outbuildings from the house. Possible lot severance might be available (buyer to verify). The current OFA tax credits may not apply and the land is subject to HST. Two drilled wells serve the farm and house separately. Located in the Town of Erin with an Acton address, close to Acton shops and GO station, Georgetown, Guelph, Milton, and Rockwood. (id:51194)
Property Details
|
MLS® Number
|
X12580700 |
|
Property Type
|
Agriculture |
|
Community Name
|
Rural Erin |
|
Amenities Near By
|
Golf Nearby |
|
Community Features
|
School Bus |
|
Equipment Type
|
Propane Tank |
|
Farm Type
|
Farm |
|
Features
|
Wooded Area, Rolling, Open Space, Dry, Carpet Free, Guest Suite, In-law Suite |
|
Parking Space Total
|
27 |
|
Rental Equipment Type
|
Propane Tank |
|
Structure
|
Deck, Patio(s), Porch, Barn, Barn, Barn, Barn, Drive Shed, Outbuilding, Shed, Steel Silo, Workshop |
|
View Type
|
View |
Building
|
Bathroom Total
|
4 |
|
Bedrooms Above Ground
|
3 |
|
Bedrooms Total
|
3 |
|
Age
|
16 To 30 Years |
|
Amenities
|
Fireplace(s), Separate Electricity Meters |
|
Appliances
|
Fixed Machinery & Equipment Incl, Mobile Machinery & Equipment Inc, Garage Door Opener Remote(s), Water Heater, Central Vacuum, Dishwasher, Dryer, Garage Door Opener, Microwave, Stove, Washer, Window Coverings, Refrigerator |
|
Architectural Style
|
Bungalow |
|
Basement Development
|
Partially Finished |
|
Basement Features
|
Separate Entrance, Walk Out, Walk-up |
|
Basement Type
|
Full, N/a (partially Finished), N/a, N/a, N/a |
|
Cooling Type
|
Central Air Conditioning |
|
Exterior Finish
|
Stone, Brick |
|
Fire Protection
|
Alarm System, Monitored Alarm, Smoke Detectors, Security System |
|
Fireplace Present
|
Yes |
|
Fireplace Total
|
1 |
|
Fireplace Type
|
Woodstove |
|
Flooring Type
|
Hardwood, Tile |
|
Foundation Type
|
Poured Concrete |
|
Half Bath Total
|
1 |
|
Heating Fuel
|
Propane |
|
Heating Type
|
Forced Air |
|
Stories Total
|
1 |
|
Size Interior
|
2000 - 2500 Sqft |
|
Utility Water
|
Drilled Well |
Parking
|
Attached Garage
|
|
|
Garage
|
|
|
Inside Entry
|
|
|
R V
|
|
Land
|
Access Type
|
Public Road, Year-round Access |
|
Acreage
|
Yes |
|
Land Amenities
|
Golf Nearby |
|
Landscape Features
|
Landscaped |
|
Sewer
|
Septic System |
|
Size Depth
|
2157 Ft |
|
Size Frontage
|
2016 Ft |
|
Size Irregular
|
2016 X 2157 Ft ; From Geo & Considered Estimates. |
|
Size Total Text
|
2016 X 2157 Ft ; From Geo & Considered Estimates.|50 - 100 Acres |
|
Zoning Description
|
A2 And Ep |
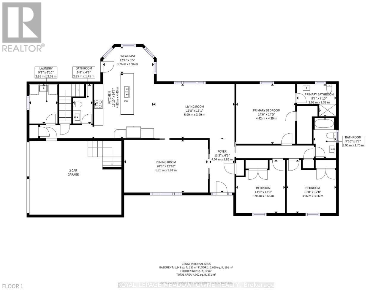
Rooms
| Level |
Type |
Length |
Width |
Dimensions |
|
Basement |
Recreational, Games Room |
7.98 m |
5.51 m |
7.98 m x 5.51 m |
|
Basement |
Kitchen |
6.63 m |
4.86 m |
6.63 m x 4.86 m |
|
Basement |
Bathroom |
2.08 m |
1.78 m |
2.08 m x 1.78 m |
|
Basement |
Office |
3.78 m |
3.51 m |
3.78 m x 3.51 m |
|
Basement |
Great Room |
9.55 m |
7.49 m |
9.55 m x 7.49 m |
|
Main Level |
Living Room |
5.99 m |
3.99 m |
5.99 m x 3.99 m |
|
Main Level |
Dining Room |
6.25 m |
3.91 m |
6.25 m x 3.91 m |
|
Main Level |
Bedroom 3 |
3.96 m |
3.96 m |
3.96 m x 3.96 m |
|
Main Level |
Bathroom |
3 m |
1.8 m |
3 m x 1.8 m |
|
Main Level |
Laundry Room |
3.78 m |
2.06 m |
3.78 m x 2.06 m |
|
Main Level |
Kitchen |
4.93 m |
4.45 m |
4.93 m x 4.45 m |
|
Main Level |
Eating Area |
3.76 m |
1.96 m |
3.76 m x 1.96 m |
|
Main Level |
Bathroom |
2.95 m |
1.45 m |
2.95 m x 1.45 m |
|
Main Level |
Laundry Room |
2.95 m |
2.08 m |
2.95 m x 2.08 m |
|
Main Level |
Foyer |
4.04 m |
1.85 m |
4.04 m x 1.85 m |
|
Main Level |
Primary Bedroom |
4.42 m |
4.39 m |
4.42 m x 4.39 m |
|
Main Level |
Bathroom |
3 m |
1.7 m |
3 m x 1.7 m |
|
Main Level |
Bedroom 2 |
3.96 m |
3.66 m |
3.96 m x 3.66 m |
Utilities
|
Electricity
|
Installed |
|
Wireless
|
Available |
|
Telephone
|
Nearby |
https://www.realtor.ca/real-estate/29141280/4958-wellington-road-125-erin-rural-erin